Werder. Mehr Sicherheit in der Gluckstraße: In der zweiten Märzwoche wird mit der Erneuerung der wichtigsten Straße in Werders Musikerviertel begonnen. In mehreren Abschnitten sollen die Bauarbeiten bis zum Spätherbst abgeschlossen werden. Die Straße wird auf sechs Meter Breite und der Gehweg auf beiden Seiten auf zwei Meter Breite ausgebaut.
Die Vergabe der Bauleistungen ist erfolgt. Begonnen wird mit Leitungsneuverlegungen zwischen Kemnitzer Straße und Bachstraße und zwischen Mozart- und Schubertstraße. Auch wenn die Hauptbauzeit in die Sommerferien gelegt wurde, ist in der gesamten Bauzeit mit erheblichen Verkehrseinschränkungen zu rechnen.

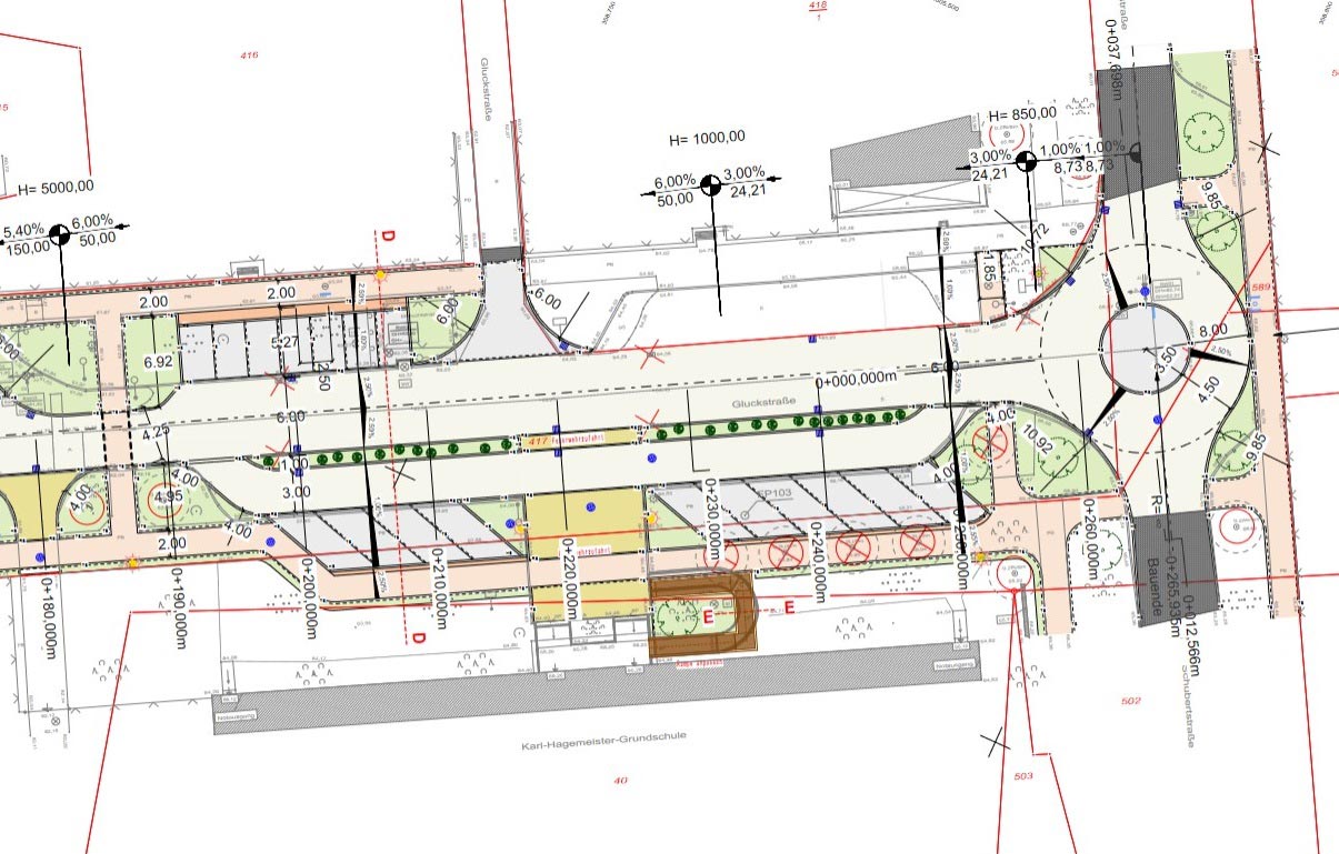
„Elternspur“ vor der Schule
Ein großes Anliegen des Bauprojektes ist die bessere Sicherung des Schulwegs. So soll der Hol- und Bringeverkehr vor der Hagemeister-Grundschule besser strukturiert werden. Abgetrennt von den beiden Fahrstreifen der Gluckstraße wird eine „Elternspur“ direkt vor der Schule eingerichtet. Sie wird einspurig und 50 Meter lang sein und auch 10 Parkplätze vor dem Schulgebäude erschließen.
An der Kreuzung Schubertstraße / Gluckstraße entsteht ein kleiner Kreisverkehr, der das Wenden erleichtern und das Unfallrisiko minimieren wird. Ebenfalls zur Schulwegsicherung wird an der bereits bestehenden Straßeneinengung eine Fußgängerfurt mit einer Pflasterdecke eingerichtet. Die Oberfläche wird sich von der asphaltierten Straße somit etwas absetzen.
Regenwasserrigolen für den Umweltschutz
Die Tempo-30-Zone wird nach der Sanierung bestehen bleiben. Eine weitere Neuerung ist eine Rechtsabbiegespur zur Kemnitzer Straße. Außerdem werden im 300 Meter langen Straßenverlauf drei Regenwasserrigolen angelegt. Vorgeschaltet ist jeweils eine Sedimentationsanlage, die das Wasser filtert.
Die rund sechs Meter tiefen Rigolen dienen dem Umwelt- und Klimaschutz. Bei allen neuen Straßenbauprojekten in Werder (Havel) wird geprüft, ob das Regenwasser umweltfreundlich vor Ort versickert werden kann, damit es bei der Grundwasserneubildung hilft und nicht in der Havel „verschwindet“. So wurde zuletzt auch in der Moosfennstaße verfahren.
In der Gluckstraße kommt hinzu, dass der Regenwasserhauptkanal in der Kemnitzer Straße bereits sehr stark belastet ist, was bei Starkregen im Bereich des Plantagenplatzes zur überfluteten Fahrbahn führen kann. Nach der Sanierung der Gluckstraße wird von den Rigolen bis auf einige geschlossene Schächte zur Reinigung der Filter nichts mehr zu sehen sein.
Bauvorbereitende Maßnahmen beginnen
Die Gluckstraße wird, etwa an den jetzigen Standorten der Straßenbeleuchtung, mit neuen energiesparenden LED-Laternen ausgestattet. Die bestehenden Parkplätze werden erneuert. 7 Bäume und 50 Sträucher werden im Stadtgebiet als Ausgleich für die Baumaßnahme neu gepflanzt.
Bauvorbereitende Maßnahmen werden in den nächsten Tagen beginnen. Die Kosten der Straßensanierung liegen bei knapp 2 Millionen Euro. Straßenausbaubeiträge müssen im Land Brandenburg seit dem Jahr 2019 nicht mehr gezahlt werden. Die Stadt bekommt dafür vom Land einen jährlichen Mehrbelastungsausgleich ausgezahlt.
Die Baupläne wurden auf der Internetseite der Stadt unter dem Reiter „Aktuelle Projekte“ https://www.werder-havel.de/wirtschaft-stadtentwickung/aktuelle-projekte.html veröffentlicht. Am 22.2.2022 wurde eine Anwohnerinformation durch die beauftragte Baufirma Eurovia Verkehrsbau Union ausgehangen bzw. verteilt.
(Pressemitteilung der Stadt Werder (Havel) | Henry Klix | Artikelfoto: Durch eine abgetrennte Fahrspur vor der Schule soll das Bringen und Abholen sicherer werden)


